ID LOGISTICS

Montierchaume (36)


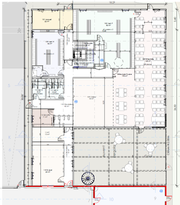
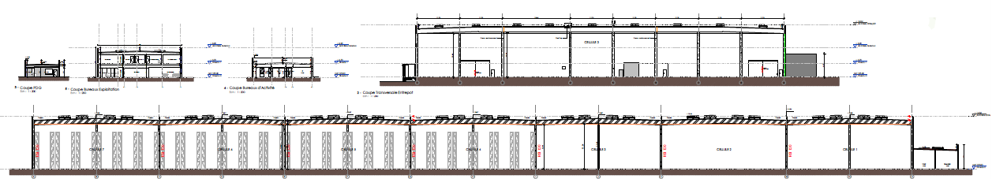
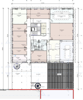
Réalisation d’un entrepôt de 7 cellules de 25 000m² à destination d’un parfumeur français très connu. Centrale solaire sur 100% des places de parking car impossibilité en toiture entrepôt du fait de l’ICPE (déclaration). Mécanisation de 30% de la surface de l’entrepôt. Bâtiment BREEAM niv. Very Good. 2 extensions pour 6 000m² prévues.

Maître d'ouvrage : Financière ID

Mission : Mission complète de maitrise d'œuvre

Surface : 25 000 m² SDP

Partenaires : Ingea (ICPE)
Artelia (VRD + RT 2012 / RE 2020)

Livraison : 2026/2027

Budget : 20 M€ + 12 M€ mécanisation